2.5 Zimmer Wohnung in 8722 Kaltbrunn zu verkaufen

2.5 Zimmer Wohnung in 8722 Kaltbrunn zu verkaufen
Kaufen
Kategorie
Wohnung
Zimmer
2.5 Zimmer
Wohnfläche
65m2
Merkmale
  • Lift
  • Rollstuhlgängig
  • Haustiere erlaubt
  • Gartensitzplatz
  • EG / Parterre
  • Neubau
  • Waschturm
Standort
8722 Kaltbrunn, Kanton St. Gallen, obermühlestrasse 10
Kaufpreis
CHF 420’000.-
Verfügbar ab
30.01.2023
Beschreibung
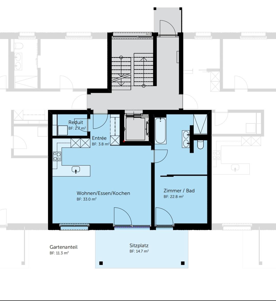
Desinger Wohnung an ruhiger Lage zu verkaufen Wir verkaufen in Kaltbrunn 2.5 Zimmer Garten-Wohnung im Erdgeschoss ab 1. Februar 23 Erfüllen Sie sich den Traum Ihres eigenen Domizils, mit der möglichkeit die bestehende tiefere Hypothek zu übernehmen. Geniessen Sie ihr Eigenheim ruhiger Sackgasse und doch Zentraler Lage. Das Objekt Ihrer Begierde überzeugt mit schönem Sichtbeton und durchdachtem Grundriss. Begleiten Sie mich auf einen ersten, imaginären Rundgang: Im Eingangsbereich stosst man auf eine grosszügige Garderobe mit Einbauschrank , rechts ist bereits das Reduit mit Waschmachine. Der Gang führt in den offene Wohn- Essbereich mit direktem Ausgang zum sonnigen Sitzplatz. Linksliegend führt die Schliessbare Türe, in die grosszügige Nasszelle."Badewanne,seperate Dusche, doppel Lavabo wie Toilette." Das Badezimmer trennt durch eine Milchglascheibe, zum Schlafzimmer das direkten Ausgang zum Sitzplatzt hat. Die Wohnung bietet, neben der Tollen Ländliche Lage folgende Annehmlichkeiten: -Wohnfläche 65 m2 -Ruhige, doch Zentrale Lage im Grünen -Wohnzimmerwand ist mit einer Holzwand verkleidet -Moderne offene Küche Reduit mit Waschmaschine/Tumbler -grosses Nasszelle Schlafzimmer direkter Ausgang zum Sitzplatz Kellerabteil? Einbauschranke beim Entrée . -Garageplatz 45`000.- wie aussen Parkplatz 15`000.- gehört zur Wohnung Haben wir Ihr Interesse geweckt? Für eine Besichtigung nehmen Sie Bitte Kontakt mit uns auf. S.Glaus Immobilien-hochdrei Glaus
Bild 1: 2.5 Zimmer Wohnung in 8722 Kaltbrunn zu verkaufen Bild 2: 2.5 Zimmer Wohnung in 8722 Kaltbrunn zu verkaufen Bild 3: 2.5 Zimmer Wohnung in 8722 Kaltbrunn zu verkaufen Bild 4: 2.5 Zimmer Wohnung in 8722 Kaltbrunn zu verkaufen Bild 5: 2.5 Zimmer Wohnung in 8722 Kaltbrunn zu verkaufen Bild 6: 2.5 Zimmer Wohnung in 8722 Kaltbrunn zu verkaufen Bild 7: 2.5 Zimmer Wohnung in 8722 Kaltbrunn zu verkaufen
  • Inserat 102787 vom 23.11.2023

Wohnungssuche

Weitere Wohnungen zu vermieten und verkaufen

8723 Rufi, St. Gallen
CHF 1’000.- monatlich
Gartensitzplatz
8864 Reichenburg, Schwyz
CHF 950’000.-
Rollstuhlgängig, Haustiere erlaubt, Terrasse, Gartensitzplatz, EG / Parterre
8864 Reichenburg, Schwyz
CHF 850’000.-
Rollstuhlgängig, Haustiere erlaubt, Gartensitzplatz, EG / Parterre
8734 Ermenswil, St. Gallen
CHF 1’375.- monatlich
EG / Parterre, Waschturm
8855 Wangen, Schwyz
CHF 1’640.- monatlich
Lift, Rollstuhlgängig